PRIMARIA MUNICIPIULUI CRAIOVA

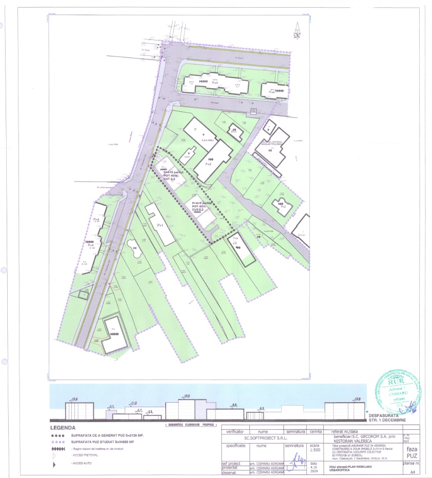
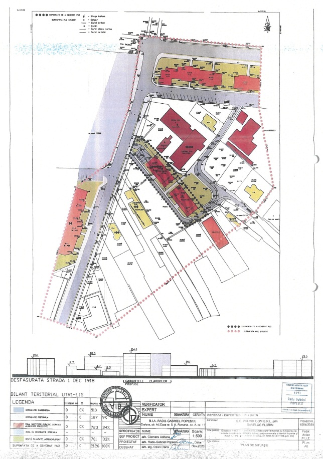
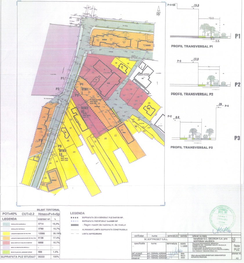
PLAN URBANISTIC ZONAL cu titulatura: RECONSIDERARE URBANISTICA INTERSECTIE STRADA 1 DECEMBRIE 1918- STRADA DOLJULUI IN VEDEREA CONSTRUIRII A DOUA CLADIRI DE LOCUINTE S+P+4-5 PARTIAL CU DESTINATIA LOCUINTE COLECTIVE SI PARCAJE LA SUBSOL, generat de imobilul din strada 1 DECEMBRIE 1918 NR. 10A

Data Publicarii: 14.10.2025.
Persoanele interesate pot trimite sugestii/observații, până la data de 08.11.2025, utilizând formularul ON-LINE sau pot înregistra adrese scrise la Serviciul Centrul de Informare pentru Cetățeni, str. A.I. Cuza nr. 1
Data încheierii consultării publice:: 08.11.2025
Fișiere atașate propunerii:

Incadrarea in zona.jpg
Mobilare urbana.jpg
pla de situatie.jpg
REGLEMENTARI.jpg